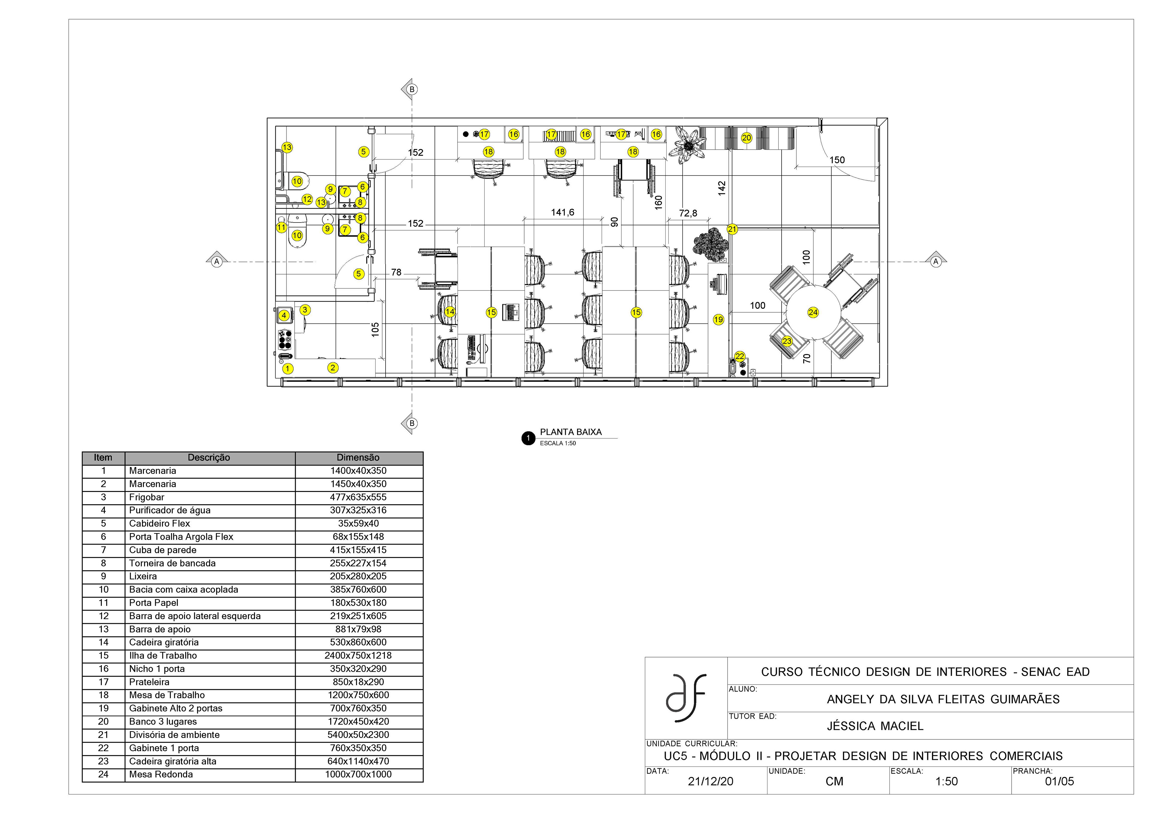
Nesse projeto foi desenvolvido a seguintes etapas: briefing, levantamento métrico, estudo preliminar, anteprojeto, projeto e projeto executivo. Estudo desenvolvido e apresentado para curso técnico de Design de Interiores (2020).